Es war schon immer Ihr Traum historische Gebäude inmitten von der Weininsel Groß-Umstadt zu neuem Leben zu erwecken?
Sie möchten mit Ihrer ganzen Familie zusammen leben, aber die Privatsphäre soll erhalten bleiben?
Oder möchten Sie Wohnen und Arbeiten miteinander verbinden und sich einen persönlichen Lebenstraum verwirklichen? Vielleicht möchten Sie auch nur einen Teil selbst bewohnen und eine weitere Einheit vermieten?
Diese charmante Hofreite bietet Ihnen sicherlich eine einmalige Gelegenheit Ihren Traum vom Wohnen ganz individuell auf einem uneinsehbaren Grundstück zu realisieren - zentraler und zugleich direkt am Altstadtkern mit seinem fast schon südländischen Ambiente in den Sommermonaten kann man kaum wohnen.
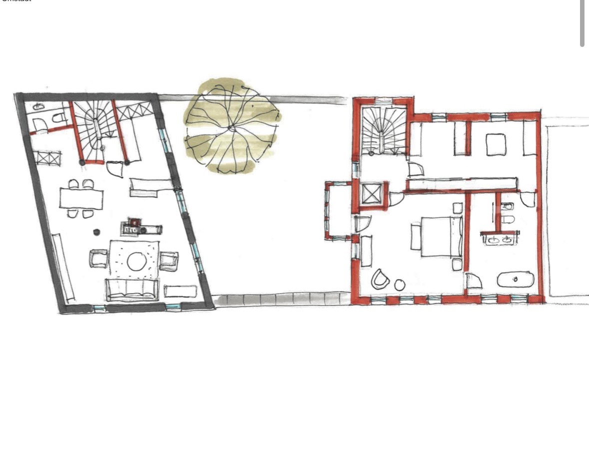
In dem alten Gebäudeensemble (Haupthaus ca. 1737 - Scheune ca. 1818) können Sie und Ihre Liebsten sich Ihre Wünsche verwirklichen.
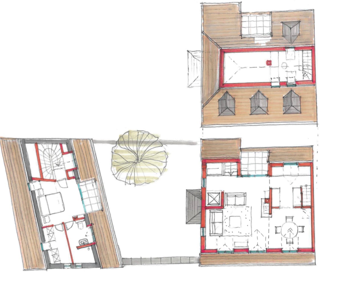
Die Wohnfläche beträgt im Haupthaus ca. 239m² zuzüglich 60m² Ausbaureserve im Spitzboden sowie in der Scheune ca. 120m².
Die derzeitigen Eigentümer planten bereits mit einem Architekten eine komplette Modernisierung mit sehr gut durchdachten Details wie beispielsweise einem Aufzug im Haupthaus bis hin zu einer Dachterrasse, einem angebauten Erker und vielen weiteren Highlights, die dieses Gebäudeensemble zu Ihrem persönlichen Juwel machen... lassen Sie sich inspirieren und gestalten Sie auf guter Substanz alles was Ihr Herz begehrt - und das in unmittelbarer Umgebung des wunderschönen Groß-Umstädter Marktplatzes. Ein durchdachtes Konzept mit Architektenentwürfen liegt bereits vor.
Insgesamt zwei Gebäude säumen den überwiegend mit Natursteinen gepflasterten Innenhof.
Das zweigeschossige Fachwerkhaus ist bereits weitestgehend entkernt und kann nach Ihren Wünschen gestaltet werden:
Auch das Nebengebäude - eine imposante Scheune - ist teilentkernt und bietet im Erd- und im Obergeschoss jeweils eine Grundfläche von über 120 m², die z.B. als Einliegerbereich, Arbeiten oder Atelier oder auch für eine genutzt werden können. Der große Gewölbekeller lässt sich sehr charmant zu Ihrem persönlichen Refugium umgestalten.
Das gesamte Anwesen verfügt über eine gute Ausbausubstanz - sowohl das Gebälk als auch das Dach können erhalten bleiben. Auf insgesamt 3 Etagen können dann bis zu 300 m² Wohnfläche mit Loggia und Freisitz generiert werden.
Das Hofensemble befindet sich innerhalb des Ensembleschutzes der Denkmalschutzbehörde. Bei Entwicklung und Sanierung müssen daher die Auflagen hinsichtlich der Denkmalschutzbehörde berücksichtigt werden. Die vom Architekten bereits ausgearbeiteten Sanierungs- und Ausbaupläne sind mit der Denkmalschutzbehörde abgestimmt und somit kurzfristig genehmigungsfähig. Es haben bereits Gespräche mit dem Denkmalamt stattgefunden.
Individualisten, Investoren und Visionären mit Blick für das Besondere bietet diese Objekt vielfältige Möglichkeiten zur individuellen Ausgestaltung.
Wir haben Ihr Interesse geweckt? Dann senden Sie uns bitte vorab Ihre persönliche Anfrage über das vollständig ausgefüllte Kontaktformular mit detaillierten Angaben zu Ihrer Person. Wir kontaktieren Sie dann sehr gerne nach erfolgter Vorauswahl zur Vereinbarung eines Besichtigungstermines und zur Besprechung weiterer Details. Wir freuen uns auf Sie!
Dieses Angebot wird für Sie in exklusiver Kooperation mit Stephanie Friedlein Immobilien angeboten.
Sie möchten gerne Ihre Immobilie in Groß-Umstadt, Darmstadt, im Landkreis Darmstadt Dieburg, an der Bergstraße, in Frankfurt, Wiesbaden oder dem Taunus vermieten oder verkaufen?
* Ensemble bestehend aus einem Haupthaus Baujahr 1737
* ansprechende Raumhöhen
* vielfältige Aufteilungsmöglichkeiten
* Imposante Scheune aus dem Baujahr 1818
* Grundstücksgröße ca. 268m²
* gute Substanz mit vielfältigen Gestaltungsmöglichkeiten
* nur einige Schritte vom historischen Groß Umstädter Marktplatz entfernt
Die „Odenwälder Weininsel Groß-Umstadt“
Groß-Umstadt ist wirtschaftliches Mittelzentrum mit guter Infrastruktur - hier begegnet Ihnen ein außergewöhnlich hoher Wohnwert mit dem Ambiente einer historischen Kleinstadt.
Ein gepflegtes und sorgfältig saniertes Stadtbild und vielfach prämierter Wein bestimmen den Charakter der Stadt. Hier erleben Sie Gemütlichkeit und ruhige Erholung in der Natur, Unterhaltung bei Festen und Märkten, Sehenswertes beim Rundgang durch die Stadt und Schmackhaftes bei Weinproben oder in ansprechenden Weinlokalen und Restaurants mit kulinarischen Köstlichkeiten. Wer einmal den Sonnenuntergang in den Umstädter Weinbergen erlebt, sich die malerische Altstadt angesehen oder ein Gläschen Umstädter Wein genossen hat, dem wird es ohnehin schwer fallen dem Charme Groß-Umstadts zu widerstehen.
Andererseits hat sich Groß-Umstadt in den vergangenen Jahren weiterentwickelt und eine moderne Infrastruktur aufgebaut. Neue Bau- und Gewerbegebiete sorgen für Wachstum und wirtschaftliche Leistungskraft und steigern die Bedeutung von Groß-Umstadt als Einkaufsstadt. Die Städte Darmstadt, Aschaffenburg, Frankfurt, Hanau und Offenbach erreichen Sie dank guter Anbindung optimal.
Wichtig!
Bitte beachten Sie, dass wir gemäß Geldwäschegesetz nach § 3 Abs. 1 GwG sowie § 4 Abs. 3, Nr. 1 GwG verpflichtet sind, bei näherem Interesse an unseren Angeboten Ihre Identität in Form Ihrer persönlichen Daten festzuhalten. Aus diesem Grund bitten wir Sie, unser in den Portalen hinterlegtes Anfrageformular vollständig auszufüllen und zu einer gewünschten Besichtigung einen gültigen Personalausweis mitzubringen. Weitere Informationen hierzu können gerne in einem unserer Büros erfragt werden.
Sie planen den Verkauf oder die Vermietung Ihrer Immobilie?
Mobil am Immobilienmarkt - wir bieten Ihnen eine umfangreiche und fachkompetente Beratung in sämtlichen Fragen rund um Immobilien in Reinheim sowie im Landkreis Darmstadt-Dieburg. Erfahrung, Fachwissen und Marktkenntnis verbinden wir mit modernster Kommunikation und stehen Ihnen gerne als qualifizierter Partner zur Verfügung.
Nehmen Sie Kontakt mit uns auf. Wir beraten Sie gerne, geben Hintergrundinformationen und zeigen Möglichkeiten auf.
Einfach, klar und unkompliziert.
Sie erreichen uns unter:
Degenhardt Immobilien Reinheim
Dirk Degenhardt Telefon 06162-919177
Kooperationspartnerin
Stephanie Friedlein Immobilien
Stephanie Friedlein Telefon 06071 – 827871 / Mobil 0163-6249274
Mail: service@friedlein-immobilien.de
Detaillierte Informationen über die von uns angebotenen Serviceleistungen erhalten Sie unter www.degenhardt-immobilien.de und www.friedlein-immobilien.de.
Besuchen Sie uns auch auf Facebook:
http://de-de.facebook.com/pages/Degenhardt-Immobilien/269946213066099
https://www.facebook.com/people/Stephanie-Friedlein-Immobilien-Immobilienmaklerin/100063625147266






















